architecture chicago
architecture chicago
architecture chicago        
home firm projects press contact
Click image to enlarge
../images/project_erie_1a.jpg

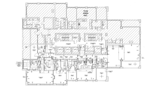
Erie Street
High Rise Living / Renovation

floorplans

This is a contemporary half floor penthouse apartment with a centralized entrance to delineate between private and living/entertaining spaces. A system of sliding doors was created to completely conceal the kitchen during formal dinner parties but could be opened for everyday living to take advantage of city views and natural light. The clients are art collectors so intricate lighting and versatile wall space & focal points were created for their revolving art collection. Two of bedrooms were redesigned into two different offices, a guest en-suite bedroom , and a master suite with enlarged dressing room.