architecture chicago
architecture chicago
architecture chicago        
home firm projects press contact
chicago renovation
Click image to enlarge
../images/project_state_1a.jpg
chicago renovation
Click image to enlarge
../images/project_state_2a.jpg
chicago renovation
Click image to enlarge
../images/project_state_3a.jpg
chicago renovation
Click image to enlarge
../images/project_state_4a.jpg

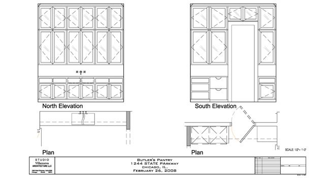
North State Parkway
Renovations & Additions

floorplans

This historic rowhouse is located in Chicago's Gold Coast. It consists of four living levels and a basement and required a complete renovation and updating to accommodate the needs of a family of 5. The basement of the rowhouse was dug out one foot plus to allow for a better use of space to include a storage room, mechanical room laundry room and a wine cellar. The remaining four levels of living space were renovated and customized to meet this family's entertaining and living needs. The first floor was designed for family interaction. The kitchen is open to the breakfast room were most family meals are eaten. An informal living room is located on this level with direct access to the rear court yard for outdoor activities. The second level is designed for more formal entertaining. The living room and dining room/library flow together for a feeling of openness and grandeur. Three pairs of large French doors overlook the landscaped courtyard at the rear of the rowhouse. The butler's pantry serves as a smaller second kitchen and staging area for formal dinner parties. The third level is strictly dedicated to the master suite. Large master bedroom with a sitting room, a spacious master bath, separate his/hers dressing rooms and an office den complete this master living level. The fourth floor includes three bedrooms, two bathrooms and a laundry room. The inclusion of sky lights serve to bring in much needed natural light to the top level.